Einfliegerhalle
Willkommen im Wahrzeichen
Die Einfliegerhalle ist das Wahrzeichen von BUC-36®. Ost- und Westflügel in Symmetrie rahmen den Tower in der Mitte ein. Nach Sanierung und Umbau sieht das Denkmal einer Zukunft als Wohnraum entgegen.
In der Einfliegerhalle stellten die Bücker-Werke die neu gefertigten Maschinen ein, um sie von den Werkspiloten „einfliegen“ zu lassen. Diese Testflüge sollten die Leistungsfähigkeit vor Auslieferung an die Kunden sicherstellen. Der heutige Bau verdankt sein Bestehen einem folgenschweren Missgeschick: Nach einem Pilotenwechsel rollte 1939 ein Sportflugzeug führerlos in die alte Halle im Osten des Flugfeldes. Die Folge: eine Explosion, die das Bauwerk und 50 neue Bücker-Maschinen zerstörte.
Schon 1940 war die neue Einfliegerhalle an der Nordseite des Flugfeldes nach Planung von Otto Werner vollendet. Als die Sowjetischen Streitkräfte das Areal 1945 übernahmen, setzten sie dem zentralen Bürotrakt ein Geschoss auf und nutzen ihn zur Flugüberwachung.
Nach dem Prinzip „Haus im Haus“ entsteht in der Einfliegerhalle Wohnraum. Kuben für die Wohnungen werden eingefügt. Silhouette und Fassaden bleiben dadurch erhalten.
© Sebastian Greuner


So soll die denkmalgeschützte Einfliegerhalle nach der Sanierung aussehen. Historische Bauteile wie Fassaden, Holztore, Fachwerkbinder und Oberlichtkonstruktionen werden restauriert und bleiben erhalten. Highlights der Wohnungen sind der freie Ausblick und die Nähe zum Flugfeld.
Einfliegerhalle – Westflügel
Im Westflügel der Einfliegerhalle in BUC-36® schaffen wir für Sie 22 Wohnungen und 2 Family Homes mit 2 bis 5 Zimmern zwischen 52 m² und 135 m². Highlights sind der freie Ausblick und die Nähe zum Flugfeld – neue Terrassen, Südbalkone und Dachterrassen erweitern die Wohnungen nach draußen. Eichenparkett, Designbäder und moderne Haustechnik sowie oberirdische Pkw-Stellplätze und Fahrradstellplätze schaffen den passenden Rahmen.
Sie profitieren unter anderem von Denkmalabschreibung nach § 7i EStG und Fördermitteln durch KfW-Effizienzhaus 55 EE WPB. Mehr zu Ihren Vorteilen erfahren Sie hier.









Einfliegerhalle – OSTflügel
Im Ostflügel der Einfliegerhalle in BUC-36® schaffen wir für Sie 20 Wohnungen und 3 Family Homes mit 2 bis 5 Zimmern zwischen 52 m² und 135 m². Highlights sind der freie Ausblick und die Nähe zum Flugfeld – neue Terrassen, Südbalkone und Dachterrassen erweitern die Wohnungen nach draußen. Eichenparkett, Designbäder und moderne Haustechnik sowie oberirdische Pkw-Stellplätze und Fahrradstellplätze schaffen den passenden Rahmen.
Sie profitieren unter anderem von Denkmalabschreibung nach § 7i EStG und Fördermitteln durch KfW-Effizienzhaus 55 EE WPB. Mehr zu Ihren Vorteilen erfahren Sie hier.








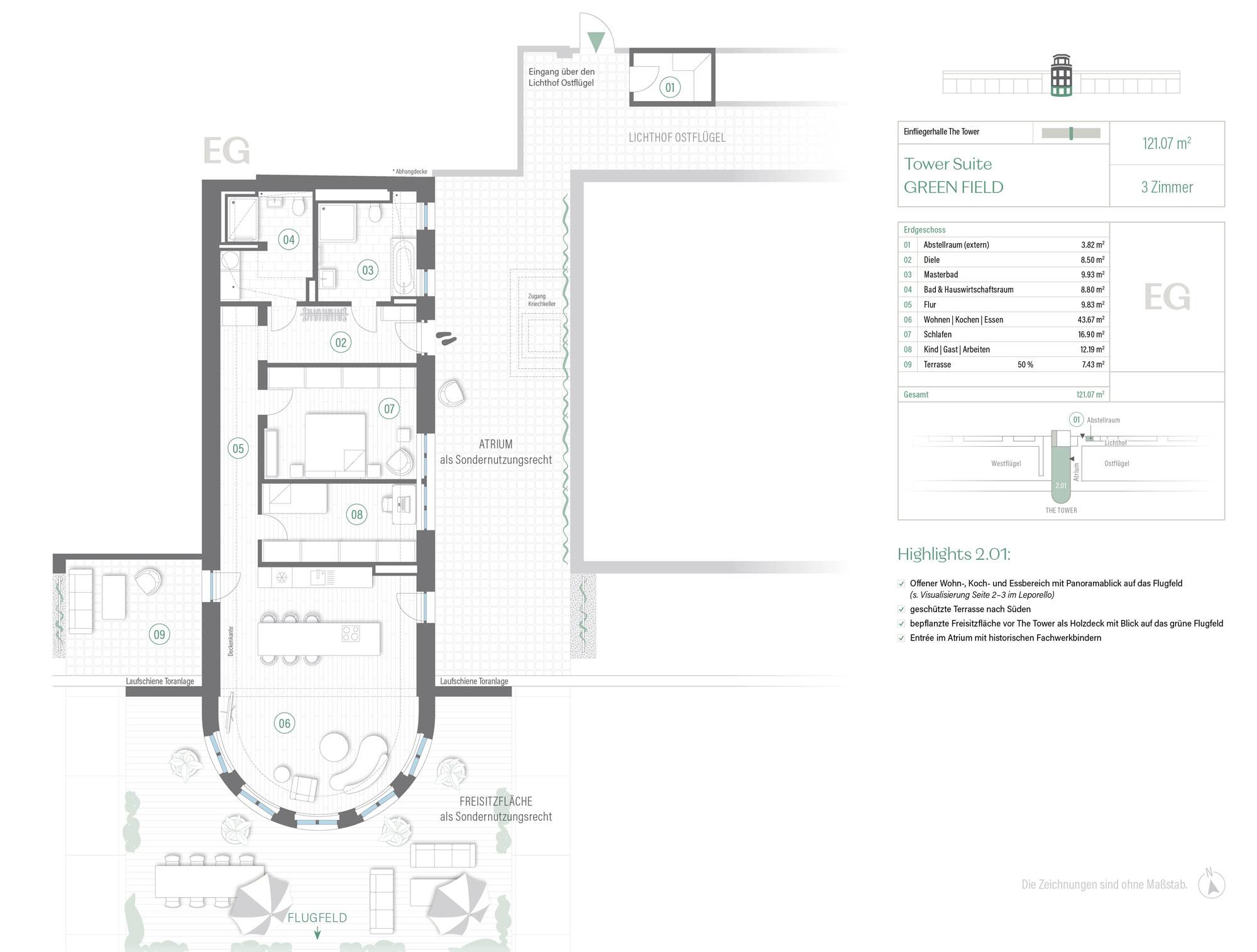
Einfliegerhalle – The Tower
The Tower ist das markante Haus am Platz und Landmark sowie Wahrzeichen von BUC-36®. Durch seine Architektur im Stil des Neuen Bauens und zentrale Lage repräsentiert er das Areal. Hier entstehen drei Wohnungen mit 2 bis 4 Zimmern und Wohnflächen von 123 m² bis 163 m². Jede Wohnung hat einen Freisitz nach Süden mit Bezug zur umgebenen Natur. Egal ob freier oder geschützter Raum, Freiheit und Weite unter dem Himmel von BUC-36® sind Ihnen gewiss. The Tower mit Halbrund und Fensterbändern nach Süden bietet die beste Aussicht auf die Weite und das Grün des Flugfelds. Genießen Sie Freiheit durch den unverbaubaren Ausblick von Ihrem Freisitz und aus Ihrer Wohnung auf die 1 Millionen Quadratmeter großen Freiflächen. Nirgends sonst haben Sie so viel Platz vor der Tür!
Im The Tower profitieren Sie unter anderem von Denkmalabschreibung nach § 7i EStG (Modernisierungskosten voraussichtlich ca. 71 % des Kaufpreises, zu 100 % abschreibbar innerhalb von zwölf Jahren) und Fördermitteln durch KfW-Effizienzhaus 55 EE WPB (vergünstigter Zinssatz, 45.000 € Tilgungszuschuss und 150.000 € Darlehen). Mehr zu Ihren Vorteilen erfahren Sie hier.
Visualisierung The Tower: So soll der denkmalgeschützte Tower der Einfliegerhalle nach Sanierung aussehen. Silhouette, Fassaden und historische Bauteile bleiben erhalten. Der Gesetzgeber fördert Erwerber einer Wohnung im Denkmal mit Steuervorteilen gemäß § 7i EStG.















